Plano de casa de 13×7 metros (43×25 pies) con 3 dormitorios – Diseño moderno en un piso
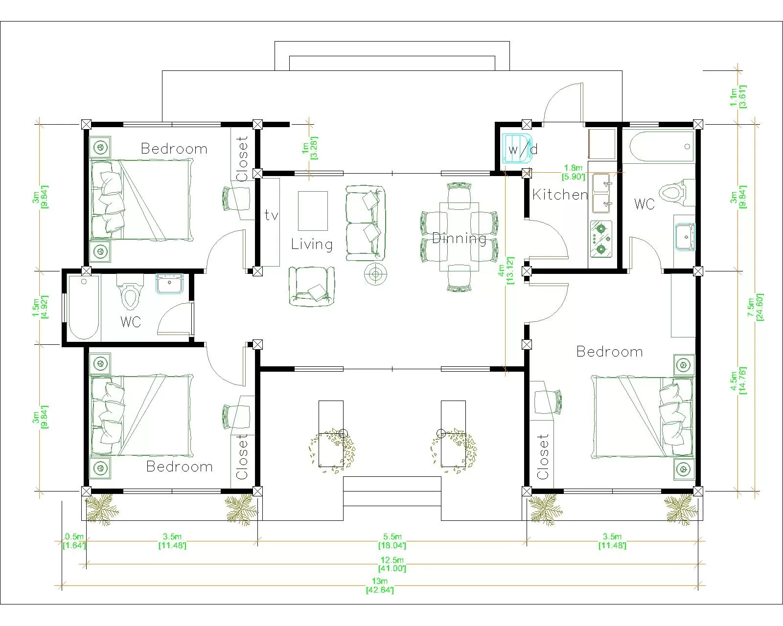
Este plano de casa moderna de 13×7 metros (43×25 pies) presenta una distribución eficiente que aprovecha al máximo cada metro cuadrado. Cuenta con 3 dormitorios bien ubicados, una sala de estar integrada con el comedor, cocina funcional y un baño completo. El diseño en planta está pensado para brindar comodidad a familias que buscan un hogar práctico en un solo nivel y adaptable a diversos tipos de terreno.












Caracteristicas del diseño de casa:
En primer lugar, el Parking exterior de la casa. Una bonita entrada a la terraza con 2 pequeños árboles hermosos se encuentra frente a la casa con un tamaño de 2,5 × 5,5 metros. Cuando atravesamos una puerta de vidrio, un pequeño Living con área de comedor de 4.0 × 5.5 metros es muy perfecto para esta pequeña casa, es agradable y moderno.
La mesa de comedor es compatible con 6 personas en esta familia. Un baño múltiple de 1,50 x 2,50 metros. La lavadora en la cocina. Brightly El tamaño de la cocina es de 1,80 x 3,00 metros, está limpio y hermoso. Finalmente, lo más importante de la casa es una puerta de salida de la cocina al patio trasero.
El tamaño del dormitorio 1 es de 3,50 x 4,50 metros con una cama queen size y armario, el tamaño del baño es de 1,5 × 3,0 metros. Los dormitorios 2 y 3 tienen el mismo tamaño de 3,5 × 3,0 metros y también tienen armario.
Ambientes con el que cuenta el diseño de casa:
El Modelo de Casa Tiene:
🔸 1 Estacionamientos de autos y jardín
🔸 Sala
🔸 Comedor
🔸 Cocina
🔸 3 Dormitorios
🔸 2 baños
🔸 1 Lavandería
Caracteristicas del diseño de casa:
🔸 Diseño: Planos de casa de 13×7.5 m en 2D y 3D
🔸 Estilo de Casa: Minimalista Moderno
🔸 Numero de Niveles: 1 Piso
🔸 Ancho x Profundidad: 13×7.5 metros
🔸 Aplicación del plano: Adaptable a terrenos con Medidas Similares

Lo que obtendras al comprar estos planos
Planos de Distribución
- ✅ PDF con medidas por habitación
- 📐 Plano editable en AutoCAD
- 🖼️ Imagenes de los diseños
Planos de elevación
- ✅ Fachadas y cortes en PDF
- 📏 Diseño en DWG editable
- 🖼️ Imágenes JPG de elevaciones
Diseño 3D editable
- ✅ Modelo SKP para SketchUp
- 🖼️ Vistas 3D desde varios ángulos
¡Construye tu casa soñada hoy mismo!
Descarga los planos completos y empieza a hacer realidad tu proyecto.

Planos de casa de 13×7 metros – 43×25 pies con 3 dormitorios
- Planos en PDF Listo para imprimir
- Planos editables en Autocad y Sketchup
- Descarga inmediata
$370.90 El precio original era: $370.90.$29.90El precio actual es: $29.90.








